Beschrijving
Hoe fijn is deze goed onderhouden en gemoderniseerde tussenwoning!
In de afgelopen jaren is de woning met veel zorg en aandacht verduurzaamd én vernieuwd. Zo zijn de keuken (2020), toilet en badkamer (2021) vernieuwd, zijn er isolerende maatregelen getroffen, zonnepanelen (2021) geplaatst en airco’s (2023) geïnstalleerd. Hierdoor woon je hier comfortabel én energiezuinig!
De woning is op de begane grond voorzien van een fijne doorzonwoonkamer en een moderne keuken. Op de eerste verdieping bevinden zich drie ruime slaapkamers en de moderne badkamer. Via een vlizotrap is ook nog een grote zolderverdieping bereikbaar. Aan de achterzijde van de woning bevindt zich een onderhoudsvriendelijke en zonnige achtertuin met berging en een achterom.
Kortom, een instapklare woning, klaar voor de toekomst, aan de rand van gezellige het stadscentrum van Bergen op Zoom!
Ligging
De woning ligt in een rustige en kindvriendelijke buurt, met diverse winkels, scholen en openbaar vervoer in de nabije omgeving. Het historische stadscentrum ligt op ongeveer tien minuten lopen. Daarnaast zijn de uitvalswegen richting de A4 en A58 binnen enkele minuten bereikbaar.
REDENEN VOOR HET KOPEN VAN DEZE WONING
• Een instapklare (her)starterswoning
• In de afgelopen vijf jaar is de woning gemoderniseerd en verduurzaamd.
• Een energiezuinige woning met energie label A
• Zonnige tuin met berging en achterom.
• Centrale ligging, dicht bij het stadscentrum, winkels en scholen.
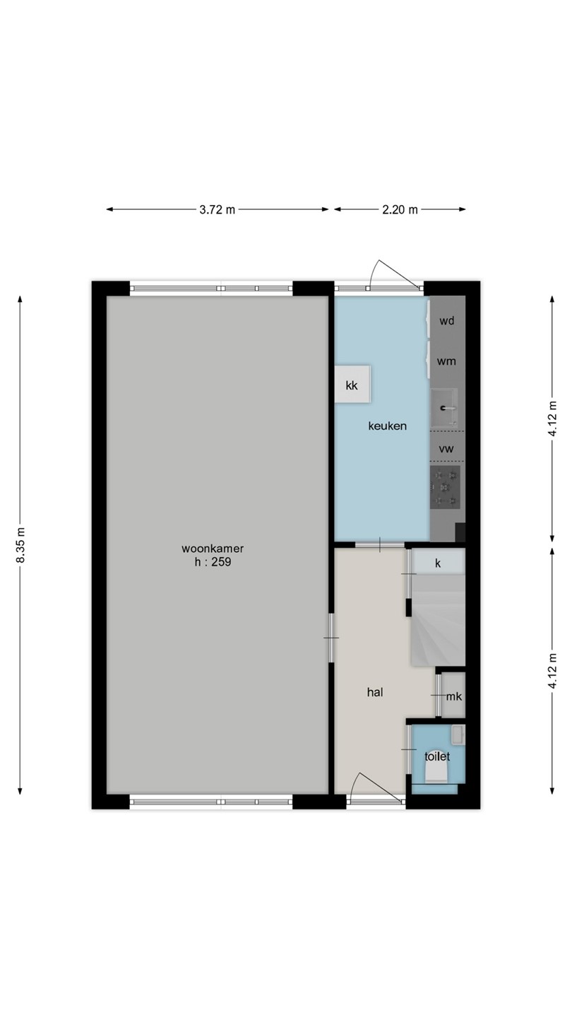
Indeling
Begane grond
Entree en toilet
Als je de woning binnen stapt kom je in de hal. Hier bevinden zich het moderne toilet (2021), de trapopgang naar de 1e verdieping, een ruime opbergkast onder de trap en de meterkast (9 groepen en 2 aardlekschakelaars).
Woonkamer
Vanuit de hal kom je via een deur in de ruime doorzonwoonkamer. Dankzij de grote ramen is er veel daglicht en heb je volop ruimte voor een royale zithoek en eettafel. Daarnaast hangt er een airco (2023) die kan koelen en verwarmen.
Keuken
Vanuit de hal kom je ook in de moderne keuken (2020). Deze bevindt zich aan de achterzijde van de woning en is uitgevoerd in een tijdloze kleurstelling en is deels voorzien van inbouwapparatuur zoals een 5 pits gaskookplaat en een vaatwasser (Siemens). Vanuit de keuken stap je direct de achtertuin in.
Eerste verdieping
Via de trap in de hal kom je op de overloop van de eerste verdieping die toegang geeft tot 3 slaapkamers en de badkamer. Ook bevindt zich hier een vlizotrap naar de bergzolder
Slaapkamers
Slaapkamer 1 (ca. 12 m2) bevindt zich aan de voorzijde van de woning.
Slaapkamer 2 (ca. 19 m2) bevindt zich aan de achterzijde van de woning.
Slaapkamer 3 (ca. 9 m2) bevindt zich ook aan de achterzijde van de woning.
De 2 slaapkamers aan de achterzijde van de woning zijn beide voorzien van een airco die zowel kan koelen als verwarmen.
Badkamer
De badkamer (2021) is modern en stijlvol uitgevoerd met een ruime inloopdouche, brede wastafel met wastafelmeubel, handdoek radiator en toilet.
Tweede verdieping
Zolderverdieping
De ruime zolderverdieping heeft een betonvloer en is momenteel bereikbaar via een vlizotrap. Door het plaatsen van een vaste trap, kan je hier nog een ruime vierde slaapkamer, werkkamer of hobbyruimte realiseren. Op zolder bevinden zich ook de cv-installatie (Nefit Proline, 2013) en de omvormer van de 14 zonnepanelen (2021).
Tuin
De zonnige en onderhoudsvriendelijke tuin ligt op het oosten en is voorzien van bestrating en een border met beplanting. Dankzij de achterom is de tuin ook via de achterzijde bereikbaar.
Berging
De stenen berging (ca. 8 m2) in de tuin is voorzien van elektra.
Bijzonderheden
• Energiezuinige woning met energielabel A: spouw- en vloerisolatie (2020), 14 zonnepanelen (2021) en 3 airco’s (2023).
• De woning is voorzien van elektrische rolluiken (2020).
• Door het plaatsen van een vaste trap naar de 2e verdieping is nog een ruime 4e slaapkamer, werkkamer of hobbyruimte te realiseren.
• Het schilderwerk (buitenzijde) is van 2020.
• De dakplaten van de berging zijn van asbestverdacht materiaal.