Beschrijving

Starters opgelet! 
Ben jij op zoek naar een heerlijke rustige plek, maar wel op loopafstand van het gezellige centrum van Bergen op Zoom? Dan is deze leuke maisonnette wellicht iets voor jou!

Op de eerste verdieping heeft de woning een badkamer en een ruime slaapkamer. Op de tweede verdieping bevindt zich een speels ingedeelde woonkamer met een ruime open keuken en aan de achterzijde van deze leuke maisonnette bevindt zich een fijn balkon.

Kortom, deze starterswoning is absoluut een bezichtiging waard!

Ligging
De maisonnette ligt in een rustige straat, op loopafstand van het gezellige en historische stadshart van Bergen op Zoom. Supermarkt, winkels en horeca liggen op loopafstand. Maar ook het station en de uitvalswegen zijn dichtbij. 

REDENEN VOOR HET KOPEN VAN DEZE WONING
•	Een goed onderhouden maisonnette met energielabel B.
•	De centrale ligging op loopafstand van het historische stadscentrum van Bergen op Zoom.
•	Een appartement met een fijne living, moderne woonkeuken en een balkon.

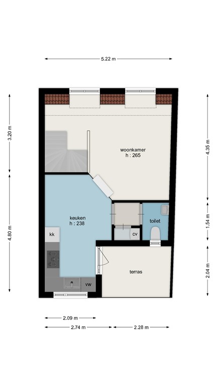
Indeling

Entree en berging
Je komt binnen in de centrale gang. Hier bevinden zich de meterkast (8 groepen en 2 aardlekschakelaars) en de trap naar de ingang van het appartement. Hier bevindt zich ook een ruime berging (ca. 8 m2).

Eerste verdieping

Op de eerste verdieping bevindt zich de toegangsdeur van de maisonnette. 
Hier kom je binnen in een hal die toegang geeft tot een ruime slaapkamer en de badkamer. Ook bevindt zich hier de trap naar de 2e etage. 

Slaapkamer
De slaapkamer (ca. 10 m2) is licht en comfortabel, en gelegen aan de voorkant van de woning. 

Badkamer
De badkamer beschikt over een douchecabine en een wastafelmeubel. Daarnaast bevindt zich hier de aansluiting voor de wasmachine.

Tweede verdieping

De trap vanaf de eerste verdieping geeft direct toegang tot een gezellige woonkamer en open keuken. Daarnaast vind je op deze verdieping het toilet en een opbergkast waarin ook de HR CV-ketel (Intergas HRE Kombi Kompakt, 2023) hangt.

Woonkamer + keuken
Een fijne lichte en sfeervolle woonkamer die zich aan de voorzijde van de woning bevindt.

Via een kleine opstap kom je vervolgens in de ruime keuken. Hier is voldoende ruimte voor een eettafel. De keuken in hoekopstelling is modern uitgevoerd en voorzien van diverse inbouwapparatuur, waaronder een vaatwasser, koelkast, combimagnetron en keramische kookplaat.

Balkon

De keuken geeft toegang tot de aan de achterzijde en op het noorden gelegen balkon (ca 6 m2).

Bijzonderheden

•	Er is sprake van een Vereniging van Eigenaren (VVE) met een maandbijdrage van € 100. 
•	Het dak wordt vernieuwd in februari. Hiervoor is reeds betaald vanuit de VVE.
•	De airco (Daikin, koelen en verwarmen) is vorige zomer 2025 geplaatst.
•	Het schilderwerk buiten is van december 2022.

Kenmerken