Beschrijving

Hoe leuk is deze fijne, speels ingedeelde en op de begane grond uitgebouwde tussenwoning in de kindvriendelijke wijk Noordgeest!?

De woning is op de begane grond voorzien van een uitgebouwde woonkamer met een schuifpui naar het zonnige tuintje op het westen en een open keuken in het midden van de woning. Op de 1e verdieping bevinden zich 2 ruime slaapkamers en de badkamer. Op de 2e verdieping bevinden zich nog een berging, wasruimte en een 3e slaapkamer. Aan de achterzijde bevindt zich de zonnige onderhoudsvriendelijke tuin met stenen berging en achterom. 

Kortom, deze woning is absoluut een bezichtiging waard! 

Ligging
De woning ligt, op een iets hoger gelegen gedeelte, aan een doorgaande straat tegenover een plantsoen met speeltuintje. Aan de overkant is er een bushalte waar de bus stopt die je naar het station en het centrum van Bergen op Zoom brengt. Er is voldoende parkeergelegenheid naast en achter de woning en er zijn vele voorzieningen op loopafstand.

De Melanen, het Meilustbos, scholen en winkels bevinden zich op zo’n 10 minuten loopafstand van de woning. Naar het historische stadscentrum van Bergen op Zoom en het station is het zo’n 10 minuten fietsen en ook de snelweg is eenvoudig en snel bereikbaar. 

REDENEN VOOR HET KOPEN VAN DEZE WONING
•	Een fijne woning met een uitgebouwde woonkamer en een zonnige tuin met berging en achterom. 
•	3 ruime slaapkamers maar ook de mogelijkheid om een 4e slaapkamer te realiseren.
•	De ligging in een rustige en kindvriendelijke woonomgeving, nabij supermarkt, scholen, binnenstad en uitvalswegen.

Indeling

Begane grond

Entree 
Als je de woning binnen stapt kom je in de hal. Zoals gebruikelijk biedt de hal toegang tot een toilet en de woonkamer. Ook bevindt zich hier de meterkast (5 groepen en 2 aardlekschakelaars) en de trap naar de eerste verdieping. 

Woonkamer
De woonkamer is door de aanbouw aan de achterzijde van de woning speels ingedeeld. Als je de woonkamer binnenstapt vanuit de hal heb je direct een ruime opbergkast onder de trap. Aan de voorzijde bevindt zich een werkplek, in het midden is het eetgedeelte bij de open keuken en aan de achterzijde, in de aanbouw, bevindt zich het zitgedeelte. Uiteraard is het ook mogelijk om deze indeling om te draaien.

Keuken
De open keuken ligt in het midden van de woning. De keuken is ingericht met een keukenblok met onder- en bovenkasten en een kunststof aanrechtblad met houtlook. De keuken is voorzien van een (combi) oven, een inductie kookplaat met afzuigkap, koel- vriescombinatie en een vaatwasser.

Eerste verdieping

Via de trap kom je op de overloop van de eerste verdieping. De overloop geeft toegang tot 2 ruime slaapkamers en de badkamer. Ook bevindt zich hier de vaste trap naar de zolderverdieping.  

Slaapkamers
Slaapkamer 1 (ca. 18 m2) met een vaste kastenwand, bevindt zich aan de achterzijde van de woning. Voorheen waren dit 2 slaapkamers. 
Dit is eenvoudig weer te realiseren.
Slaapkamer 2 (ca. 10m2) bevindt zich aan de voorzijde van de woning. 

Badkamer
De betegelde badkamer is voorzien van een douche, toilet en een enkele wastafel met onderkast.

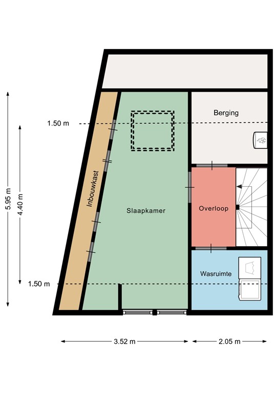
Tweede verdieping

Via de vaste trap vanaf de eerste verdieping kom je op een overloop die toegang geeft tot een ruimte waar zich de wasmachine- en drogeraansluiting bevindt. Ook vind je hier, in een bergruimte, de cv combi-ketel (Intergas Kombi Kompakt HRE, 2020). 

Slaapkamer
De overloop geeft daarnaast toegang tot nog een 3e slaapkamer (ca. 14 m2). Deze kamer is voorzien van volledig op maat gemaakte inbouwkasten.

Tuin

Achtertuin 
De knusse en zonnige op het westen gelegen achtertuin is voorzien van sierbestrating. 

Berging en achterom
Achter in de tuin bevindt zich nog de ruime stenen berging (10 m2) die is voorzien van elektra. Ook vind je hierin de achteruitgang (achterom).

Bijzonderheden

De gehele woning is voorzien van rolluiken.

Kenmerken