Beschrijving
Wat een fijne plek om thuis te komen! Deze ruime en instapklare tussenwoning is met veel smaak ingericht en keurig afgewerkt.
De woning is op de begane grond voorzien van een heerlijke ruime living met openslaande deuren naar de tuin en een fijne ruime, moderne keuken. Op de 1e verdieping bevinden zich 3 slaapkamers en de badkamer en op de zolderverdieping is nog een ruime slaapkamer gecreëerd met een badkamer ensuite.
Aan de voor- en achterzijde van deze leuke woning bevinden zich mooi aangelegde tuinen met in de achtertuin een berging en achterom.
Kortom, deze moderne gezinswoning is absoluut een bezichtiging waard!
Ligging
Gelegen aan de rand van de jonge wijk De Markiezaten, is dit de ideale plek voor gezinnen die graag wonen in een jonge, levendige wijk. Voorzieningen zoals scholen, supermarkten en sportvelden zijn allemaal in de buurt en het historische stadscentrum van Bergen op Zoom bereik je binnen 10 minuten op de fiets. Mocht je met de auto op pad gaan, dan zijn uitvalswegen richting de snelwegen A4/A58 goed bereikbaar.
REDENEN VOOR HET KOPEN VAN DEZE WONING
• Een volledig instapklare moderne tussenwoning.
• Een ruime 4e slaapkamer op de zolderverdieping met badkamer ensuite.
• Een heerlijke tuingerichte living met openslaande deuren.
• Een mooi aangelegde voor- en achtertuin.
• Een energiezuinige woning met energielabel A.
Indeling
Begane grond
Entree
Als je de woning binnen stapt kom je in de hal. Deze is voorzien van een mooie gietvloer. Direct aan de linkerkant bevindt zich het toilet, vervolgens de meterkast (8 groepen, 2 aardlekschakelaars) en de trap naar de eerste verdieping.
Woonkamer
Vanuit de hal kom je via een deur in de prachtig ruime, tuingerichte living met openslaande deuren naar de tuin.
Aan de voorzijde van de woning bevindt zich de open keuken en het eetgedeelte en een roomdivider zorgt voor een speelse scheiding met het zitgedeelte dat zich aan de achterzijde van de woning bevindt.
Keuken
De moderne open keuken aan de voorzijde van de woning is voorzien van een kast met daarin een koel- vriescombinatie, een oven en combimagnetron. Verder beschikt de keuken over een 5-pits gaskookplaat, afzuigkap en vaatwasser. De keuken is in een hoekopstelling en beschikt over lekker veel werkruimte.
Eerste verdieping
Via de trap in de hal kom je op de ruime overloop van de eerste verdieping die toegang geeft tot 3 slaapkamers en een nette badkamer.
Slaapkamers
Slaapkamer 1 (ca. 11 m2) bevindt zich aan de voorzijde van de woning.
Slaapkamer 2 (ca. 15 m2) bevindt zich aan de achterzijde van de woning. Slaapkamer 3 (ca. 7 m2) bevindt zich ook aan de achterzijde van de woning en is op dit moment in gebruik als kastenkamer.
Badkamer
De nette, moderne badkamer is voorzien van een ruime inloopdouche, toilet en een dubbele wastafel met onderkast en spiegelkast.
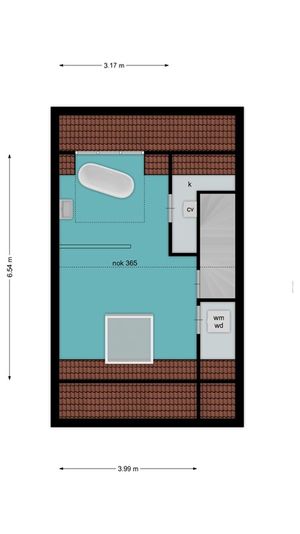
Tweede verdieping
Slaapkamer en badkamer ensuite
Via een vaste trap kom je op de tweede verdieping. In het trapgat is een airconditioning (2021) geplaatst die zowel de zolderkamer als de eerste verdieping kan verkoelen en verwarmen.
Door het plaatsen van een dakkapel is hier nog een 4e ruime slaapkamer met een prachtige open badkamer ensuite (ca. 21m2) gecreëerd. De badkamer beschikt over een losstaand bad en een waskom.
Daarnaast zijn er twee kasten gemaakt waar zich aan de ene zijde de wasmachine en de droger bevinden en aan de andere zijde is de cv-combiketel (Itho Daalderop Base Cube, 2019) keurig in een kast weggewerkt.
Tuin
Aan de voorzijde van de woning ligt een nette ruime voortuin waar ’s avonds nog heerlijk in de zon gezeten kan worden. Aangrenzend aan de woning ligt de fijne, recent opnieuw ingerichte, op het noord-oosten gelegen achtertuin. De tuin is voorzien van een ruim terras en kunstgras.
Berging
De berging in de tuin (ca. 6 m2) is van hout en is voorzien van elektra. Ook is er een achterom aanwezig.
Bijzonderheden
• De buitenzijde is in 2025 volledig geschilderd.
• De woning is voorzien van 3 zonnepanelen.
• De dakkapel is voorzien van elektrische rolluiken.
Plattegronden
Plattegrond Begane grond Strandgaper 104 Bergen op Zoom.jpg
Plattegrond 1e verdieping Strandgaper 104 Bergen op Zoom.jpg
Plattegrond 2e verdieping Strandgaper 104 Bergen op Zoom.jpg
Plattegrond berging Strandgaper 104 Bergen op Zoom.jpg