Beschrijving

Wat een fijn thuis is deze gemoderniseerde vrijstaande woning met een prachtige tuin, 2 eigen opritten en een grote garage!

De woning is op de begane grond voorzien van een ruime uitgebouwde living, een moderne keuken en een grote luxe badkamer. Op de 1e verdieping bevinden zich 3 slaapkamers en een apart toilet. Daarnaast heeft de woning nog een ruime bergzolder, een volledig nieuw aangelegde achtertuin met gezellige overkapping en een grote garage. 

Kortom, deze mooie woning is absoluut een bezichtiging waard! 

Ligging
De woning is gelegen in het rustige dorp Zegge, onder de rook van Roosendaal. Basisvoorzieningen als een supermarkt, basisschool, snackbar en (sport)verenigingen zijn hier allemaal aanwezig. Zegge is gunstig gelegen ten opzichte van omliggende dorpen en ook de snelweg is eenvoudig bereikbaar. Binnen 30 minuten zit je daardoor in het gezellige Breda of Bergen op Zoom en in 40 minuten rijd je naar de Randstad, Antwerpen of Zeeland.

REDENEN VOOR HET KOPEN VAN DEZE WONING
•	Een vrijstaande woning met 3 slaapkamers en grote luxe badkamer.
•	De woning is binnen volledig gerenoveerd.
•	Een grote, nieuw aangelegde tuin met gezellige overkapping.
•	Parkeren op eigen terrein, met 2 opritten en een grote garage.

Indeling

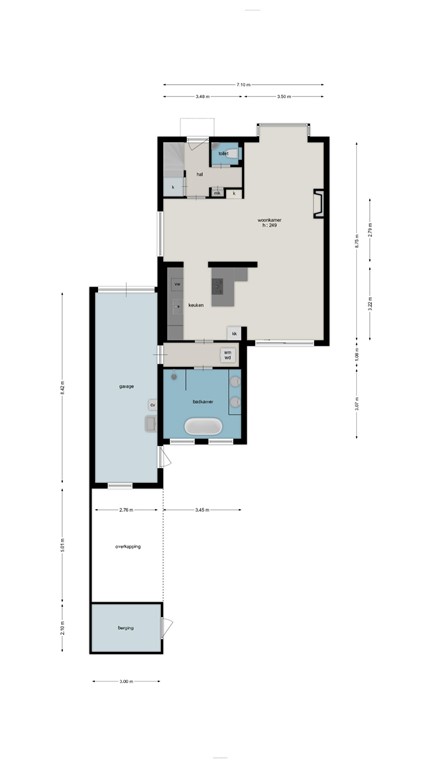
Begane grond

Entree 
Als je de woning binnen stapt kom je in de hal. Hier bevinden zich het toilet en onder de trap een ruime bergkast. Zoals gebruikelijk biedt de hal ook toegang tot de woonkamer. Ook bevinden zich hier de meterkast en de trap naar de eerste verdieping. 

Woonkamer
Vanuit de hal kom je in de zeer ruime uitgebouwde woonkamer. Aan de voorkant van de woning bevindt zich het zitgedeelte en aan de achterzijde het eetgedeelte en een moderne open keuken. Een schuifpui aan de achterzijde van de woonkamer verschaft ook toegang tot de prachtige achtertuin.

Keuken
De open keuken (2022), met kookeiland, is voorzien van een inductiekookplaat, afzuigkap, oven, magnetron en vaatwasser. Hier bevindt zich ook een deur die toegang geeft tot een tussenportaal richting de badkamer. Hier bevinden zich de aansluitingen voor de wasmachine en droger.

Badkamer
In het achterste gedeelte van de woning bevindt zich de ruime luxe en moderne badkamer (2020) met inloopdouche, dubbele wastafel en ligbad.
De badkamer is voorzien van elektrische vloerverwarming.

Eerste verdieping

Via de trap in de hal kom je op de overloop van de eerste verdieping waar zich 3 slaapkamers en een toilet bevinden. Op de overloop hangt ook een airco (LG, 2024)). 

Slaapkamers
Slaapkamer 1 (ca. 10 m2) en slaapkamer 2 (ca. 7 m2) bevinden zich aan de achterzijde van de woning. 
Slaapkamer 3 (ca. 7 m2) bevindt zich aan de voorzijde van de woning. 

Toilet
De overloop geeft ook toegang tot het nette en deels betegelde toilet.

Bergzolder
De ruime bergzolder is vanaf de overloop via een vlizotrap bereikbaar. Hier hangt ook de omvormer voor de 14 zonnepanelen.

Tuin

De op het noorden georiënteerde achtertuin is afgelopen jaar volledig aangepakt en opnieuw aangelegd met een terras, houten berging en gezellige overkapping.

Aan de voorzijde beschikt de woning over een voortuin en maar liefst 2 opritten. Ook bevindt zich hier de achterom en in het verlengde van één van de opritten ligt de garage.

Garage
De ruime garage is toegankelijk via de oprit en via het tussenportaal achter in de woning. In de garage bevindt zich de CV-ketel (Remeha Avanta 28c, 2010). Hier bevindt zich ook de gasmeter.

Berging
De houten berging grenst aan de overkapping (ca. 6 m2) en is voorzien van elektra.

Kenmerken