Beschrijving
Ben jij niet bang om de handen uit de mouwen te steken? Dan is deze woning misschien wel wat voor jou! Vrijstaand wonen, volledig gelijkvloers én gelegen aan een rustig woonerf — dit is zo’n woning waar je iets heel bijzonders van kunt maken!
Deze verrassend ruime bungalow heeft een woonkamer, een tuinkamer, een slaapkamer met eigen badkamer, twee extra multifunctionele kamers, een royale keuken en een zonnige achtertuin op het zuiden met veel privacy.
Parkeren kan op eigen terrein in de ruime voortuin.
De woning vraagt wel wat aandacht maar is daarmee uitermate geschikt voor handige kopers die hun eigen woonwensen willen realiseren.
Zie je de mogelijkheden? Dan kun je hier een comfortabel en levensloopbestendig thuis creëren op een fijne en rustige plek in Bergen op Zoom!
Ligging
De woning ligt aan de rand van Bergen op Zoom aan een woonerf met uitsluitend bestemmingsverkeer. Voorzieningen zoals winkels, scholen en sportverenigingen bevinden zich in de directe omgeving. Ook het gezellige stadscentrum van Bergen op Zoom is snel bereikbaar. Daarnaast zijn de uitvalswegen richting de A4 en A58 eenvoudig aan te rijden.
Een mooie combinatie van rustig wonen en toch overal dichtbij.
REDENEN VOOR HET KOPEN VAN DEZE WONING
• Een vrijstaande en volledig gelijkvloerse woning.
• Een grote woonkamer en tuinkamer.
• Een ruime zonnige achtertuin op het zuiden met veel privacy.
• Gelegen aan een rustig erf met alleen bestemmingsverkeer.
• Parkeermogelijkheid voor 2 auto’s op eigen terrein.
• Volop mogelijkheden om naar eigen smaak op te knappen en te moderniseren.
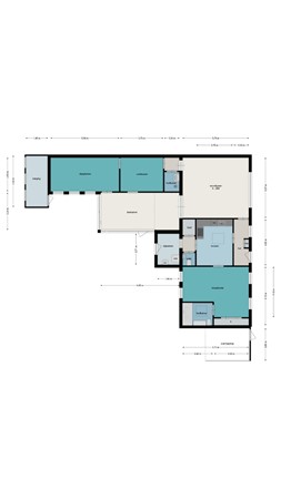
Indeling
Begane grond
Entree/hal
Via de ruime voortuin bereik je de entree van de woning. In de hal bevindt zich de meterkast (10 groepen). Vanuit hier heb je toegang tot zowel de woonkamer als de keuken.
Woonkamer en tuinkamer
De ruime woonkamer biedt volop mogelijkheden voor het creëren van een royale zit- en eethoek. Via glazen deuren kom je vanuit de woonkamer in de tuinkamer. Deze zorgt voor extra licht en een prettige verbinding met de tuin. Hier kun je nog een heerlijke leefruimte realiseren.
Keuken
De keuken is ruim opgezet en vormt het hart van de woning. De keuken is voorzien van inbouwapparatuur waaronder een 6 pits gaskookplaat, brede oven en vaatwasser en een losse koelkast. Vanuit de keuken zijn meerdere ruimtes bereikbaar, waaronder de bijkeuken en de slaapkamer.
Bijkeuken en toilet
De praktische bijkeuken is bereikbaar via de keuken. Hier bevinden zich de opstelling van de cv-ketel (Calenta 28c, 2013, huur), het toilet en een ruime bergkast. Hier is ook de achterdeur naar de tuin.
Slaapkamer met badkamer
De ruime slaapkamer is bereikbaar via de keuken en beschikt over een eigen badkamer met ligbad met douche, wastafel en bidet.
Multifunctionele kamers
Daarnaast zijn er twee kamers aanwezig. Deze ruimtes zijn multifunctioneel te gebruiken als kantoor, hobbyruimte of slaapkamer. De tweede kamer is bereikbaar via de eerste.
Tweede badkamer
Naast de badkamer bij de slaapkamer is er nog een tweede badkamer aanwezig, voorzien van douche en wastafel.
Tuin
Voortuin
In de ruime voortuin is er de mogelijkheid om te parkeren (2 auto’s) op eigen terrein.
Achtertuin
De achtertuin ligt op het zuiden en biedt veel privacy. Hier geniet je vrijwel de hele dag van de zon. De aangebouwde berging is ideaal voor fietsen en tuingereedschap. De achtertuin heeft ook een achterom.
Bijzonderheden
• Kluswoning met volop potentie.
• Er is sprake van lekkage in de waterleiding naar de badkamer.
• Lekdetectie onderzoek uitgevoerd (rapport aanwezig).
• Bouwkundige keuring uitgevoerd (rapport aanwezig).