Beschrijving
Deze leuke en verrassend ruime hoekwoning is een fijne plek om thuis te komen! Deze woning heeft een tuingerichte woonkamer met open keuken, een houtkachel, een zonnige achtertuin en een berging.
Op de 1e verdieping bevinden zich 2 ruime slaapkamers en de badkamer en op de tweede verdieping is nog een ruime zolderkamer.
Aan de achterzijde van deze hoekwoning bevindt zich een ruime zonnige tuin met tuinhuis en een achterom.
Kortom, deze ruime woning is absoluut een bezichtiging waard!
Ligging
De woning is aan de zuidkant van Bergen op Zoom gelegen aan een autoluw woonerf, in een rustige en kindvriendelijke omgeving met veel groen en een speeltuintje en speelveldje dichtbij. Een supermarkt bevindt zich op loopafstand. Ook andere voorzieningen zoals scholen, sportfaciliteiten, de binnenstad van Bergen op Zoom en het station bevinden zich op minder dan 10 minutenfietsen.
Ook de snelwegen A4/58 zijn eenvoudig bereikbaar.
REDENEN VOOR HET KOPEN VAN DEZE WONING
• Een ruime hoekwoning met houtkachel.
• De ligging in een rustige, kindvriendelijke woonomgeving, nabij supermarkt, scholen, binnenstad en uitvalswegen.
• Een zonnige achtertuin met veel privacy.
• Een recent geplaatste keuken.
Indeling
Begane grond
Entree en berging
Als je de woning binnen stapt kom je in de hal. Deze geeft toegang tot de aan de voorzijde van de woning gelegen inpandige geïsoleerde berging met bergzolder. De hal is verder voorzien van een nis die dient als garderobe, de trap naar de eerste verdieping en het toilet. Ook bevindt zich hier de meterkast (5 groepen, 2 aardlekschakelaars). Aan het eind van de hal geeft een deur toegang tot de woonkamer.
Woonkamer
Vanuit de hal kom je via een deur in de tuingerichte woonkamer die beschikt over een gezellige houtkachel. Vanuit de woonkamer kom je ook in de open keuken.
Keuken
De in 2024 geplaatste keuken bevindt zich aan de voorzijde van de woning en is voorzien van een vaatwasser, oven, inductie kookplaat en een koel-vriescombinatie.
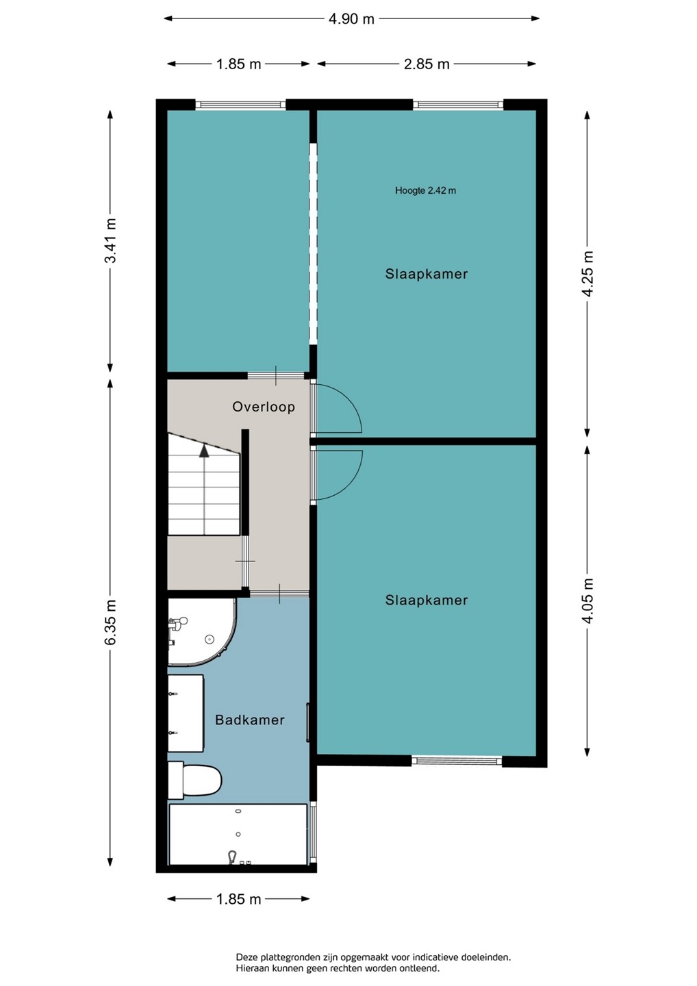
Eerste verdieping
Via de trap in de hal kom je op de overloop van de eerste verdieping die toegang geeft tot 2 slaapkamers en de badkamer. Ook bevindt zich hier de vaste trap naar de zolderverdieping.
Slaapkamers
Slaapkamer 1 (ca. 19 m2) bevindt zich aan de achterzijde van de woning. Dit waren voorheen 2 slaapkamers en dit is eenvoudig weer te realiseren.
Slaapkamer 2 (ca. 12 m2) bevindt zich aan de voorzijde van de woning.
Badkamer
De ruime betegelde badkamer bevindt zich aan de voorzijde van de woning en is voorzien van een douchecabine, een bad en een dubbele wastafel met onderkast en spiegelkast.
Tweede verdieping
Zolderkamer
Via een vaste trap kom je op de tweede verdieping. De zolderkamer is voorzien van twee dakramen en uiteraard is het ook mogelijk om hier een extra slaapkamer te creëren.
Ook is er veel opbergruimte onder het schuine dak en bevindt zich hier de Intergas combi cv-ketel uit 2024 (huur). Achter een schuifdeur bevinden zich de wasmachine- en drogeraansluiting en de mechanische ventilatie unit.
Tuin
De voortuin is bestraat en praktisch ingericht als toegang tot de woning.
De achtertuin is gelegen op het zuidwesten en biedt veel privacy. De tuin is bestraat en heeft een brede border met beplanting. Aan de zijkant van de woning bevindt zich een houtopslag en een achterom.
Tuinhuis
Het tuinhuis (ca. 8 m2) is van hout en is voorzien van tegels en elektra.
Bijzonderheden
Bijzonderheden
• In 2024 is er een waterontharder geplaatst
• De inpandige berging is in 2022 geïsoleerd en er is een radiator geplaatst.
• De woning is aan de zijkant op de begane grond en op de eerste verdieping voorzien van rolluiken.
• Aan de achterzijde van de woning bevindt zich elektrische zonwering.